page contents

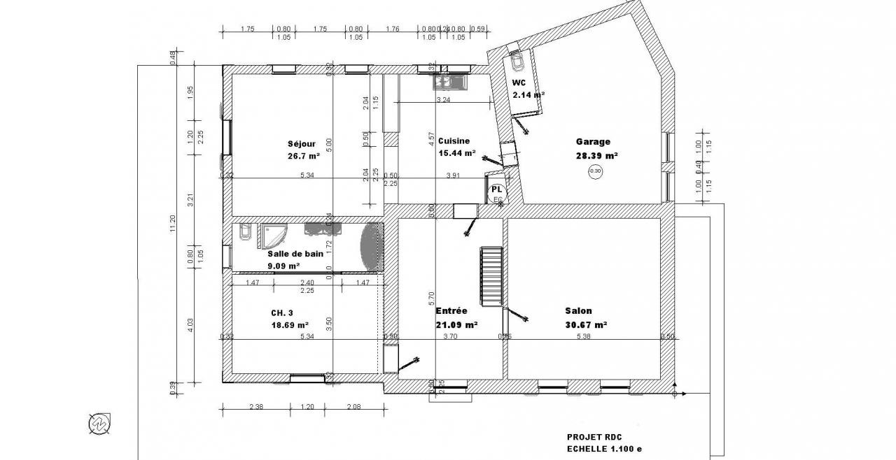
Plan RDC

Plan RDC